Il progetto ha riguardato la riqualificazione dell’Hangar 1 di Linate e conseguente ampliamento dell’aerostazione Milano Linate Prime, con la trasformazione dell’hangar esistente in una nuova estensione del terminal dedicato all’aviazione generale e business. L’intervento ha ampliato l’aerostazione di circa 2.000 mq, tra lounge, servizi passeggeri, locali tecnici e distributivi ridefinendo immagine, funzionalità e qualità degli spazi.
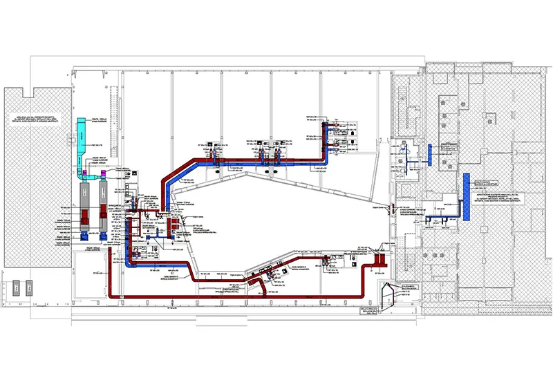
Incide Engineering ha sviluppato la progettazione strutturale e impiantistica integrata, intervenendo con l'inserimento delle nuove strutture in acciaio e tutto l'assieme dei nuovi impianti meccanici, elettrici e speciali.
L’approccio progettuale ha privilegiato la sostenibilità ambientale e l’efficienza energetica, attraverso impianti ad alte prestazioni: pompe di calore, unità di trattamento aria con recupero di calore, sistemi di monitoraggio della CO₂, predisposizioni per Building Management System (BMS), contabilizzazione energetica e integrazione di impianti fotovoltaici. Il risultato è un’infrastruttura aeroportuale premium, efficiente e sostenibile.
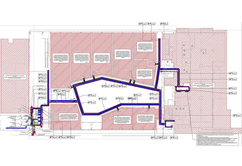
Incide Engineering ha sviluppato la progettazione strutturale e impiantistica integrata, intervenendo con l'inserimento delle nuove strutture in acciaio e tutto l'assieme dei nuovi impianti meccanici, elettrici e speciali.
L’approccio progettuale ha privilegiato la sostenibilità ambientale e l’efficienza energetica, attraverso impianti ad alte prestazioni: pompe di calore, unità di trattamento aria con recupero di calore, sistemi di monitoraggio della CO₂, predisposizioni per Building Management System (BMS), contabilizzazione energetica e integrazione di impianti fotovoltaici. Il risultato è un’infrastruttura aeroportuale premium, efficiente e sostenibile.














