Incide Engineering, as part of a multidisciplinary design consortium with MCI and Melis, delivered the detailed (executive) design and the Health and Safety Coordination during the Design Phase for the New Air Traffic Control Centre at Cagliari–Elmas Airport. The scope included architectural, structural and MEP design, as well as site works and external layouts (roads, parking areas, landscaping and all related external spaces), aimed at ensuring the overall functionality, safety and maintainability of the complex.
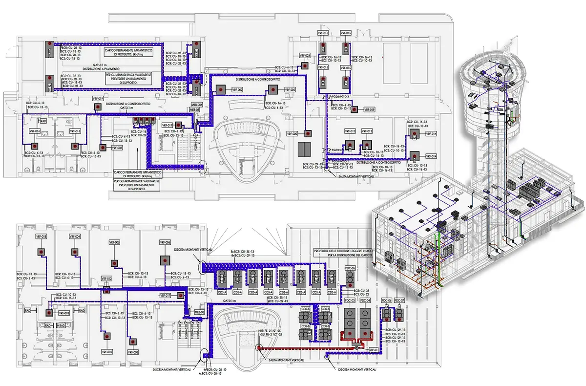
The new facility consists of the Control Tower (TWR) and the Technical Building (BT). The tower, approximately 44 metres high, hosts the Visual Control Room, designed to provide panoramic visibility and operational control of take-off, landing and ground movement operations. The Technical Building accommodates equipment rooms, technical plant areas and offices supporting the airport centre’s systems and staff.
The architectural solution and space planning meet the requirements for delivering air traffic control and air navigation assistance services operated by ENAV S.p.A., in accordance with Article 691-bis of the Italian Navigation Code. The project integrates a photovoltaic system supported by specific glare analysis, and was developed through multidisciplinary BIM coordination to optimise clashes, maintenance and performance throughout the asset lifecycle.
The new facility consists of the Control Tower (TWR) and the Technical Building (BT). The tower, approximately 44 metres high, hosts the Visual Control Room, designed to provide panoramic visibility and operational control of take-off, landing and ground movement operations. The Technical Building accommodates equipment rooms, technical plant areas and offices supporting the airport centre’s systems and staff.
The architectural solution and space planning meet the requirements for delivering air traffic control and air navigation assistance services operated by ENAV S.p.A., in accordance with Article 691-bis of the Italian Navigation Code. The project integrates a photovoltaic system supported by specific glare analysis, and was developed through multidisciplinary BIM coordination to optimise clashes, maintenance and performance throughout the asset lifecycle.













