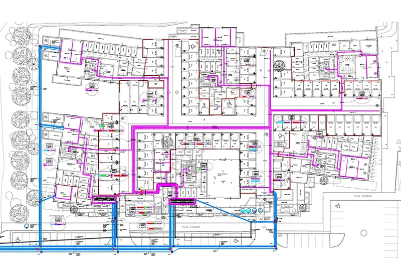
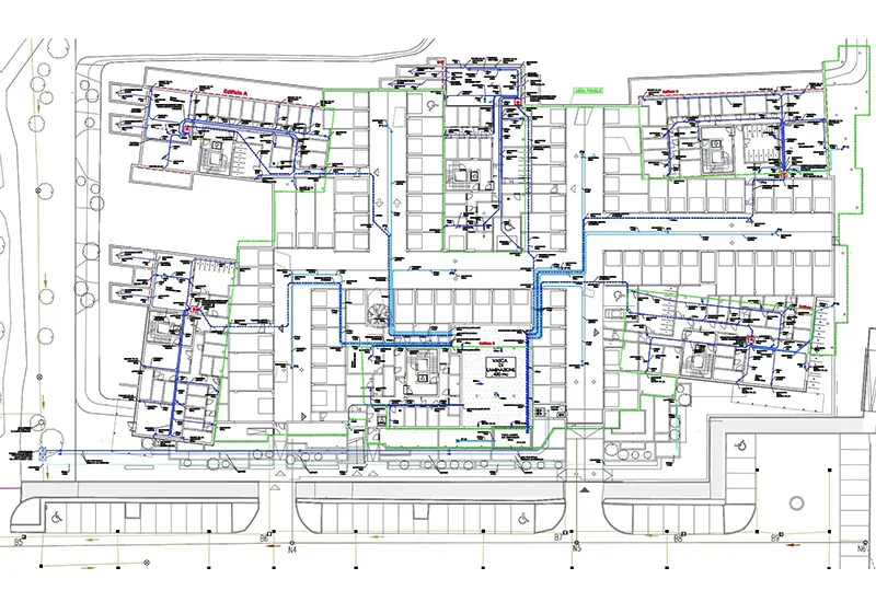
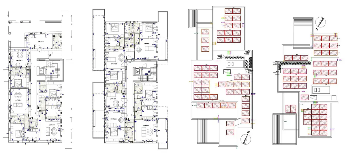
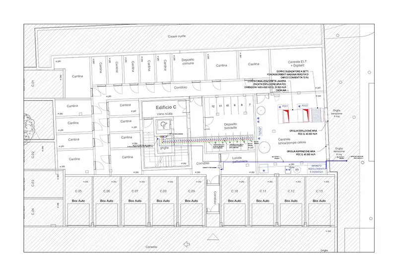
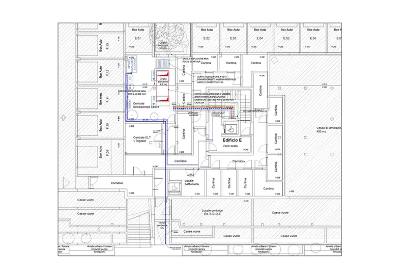
Corte Gea is a new residential development in Basiglio (Milano 3), designed to deliver high living comfort, sustainability and a strong connection with the surrounding landscape between urban greenery and the Parco Agricolo Sud Milano. The project features six buildings set on a landscaped technical podium housing parking, plant rooms and service areas, optimising functionality while enhancing outdoor quality. The buildings will achieve Energy Class A4 thanks to high-efficiency solutions including air-to-water heat pumps, mechanical ventilation with heat recovery (MVHR), hydronic distribution systems and roof-mounted photovoltaic panels. Incide Engineering delivered the integrated MEP design (mechanical, electrical and specialist systems), the dedicated MV/LV transformer substation, stormwater collection and attenuation integrated within the podium, and fire safety engineering through to final compliance submission, ensuring performance, safety and reduced energy consumption.
Corte GEA Residences - Basiglio | Italy
YEAR:
2025
OWNER:
GIA S.r.l.
CLIENT:
GIA S.r.l.
ARCHITECT:
ITCH società d'architettura
LOCATION:
Basiglio - Italy
MARKET:
Residential & housing
SERVICES:
Civil engineering - Electrical engineering - Mechanical engineering - Fire protection engineering - Commissioning













