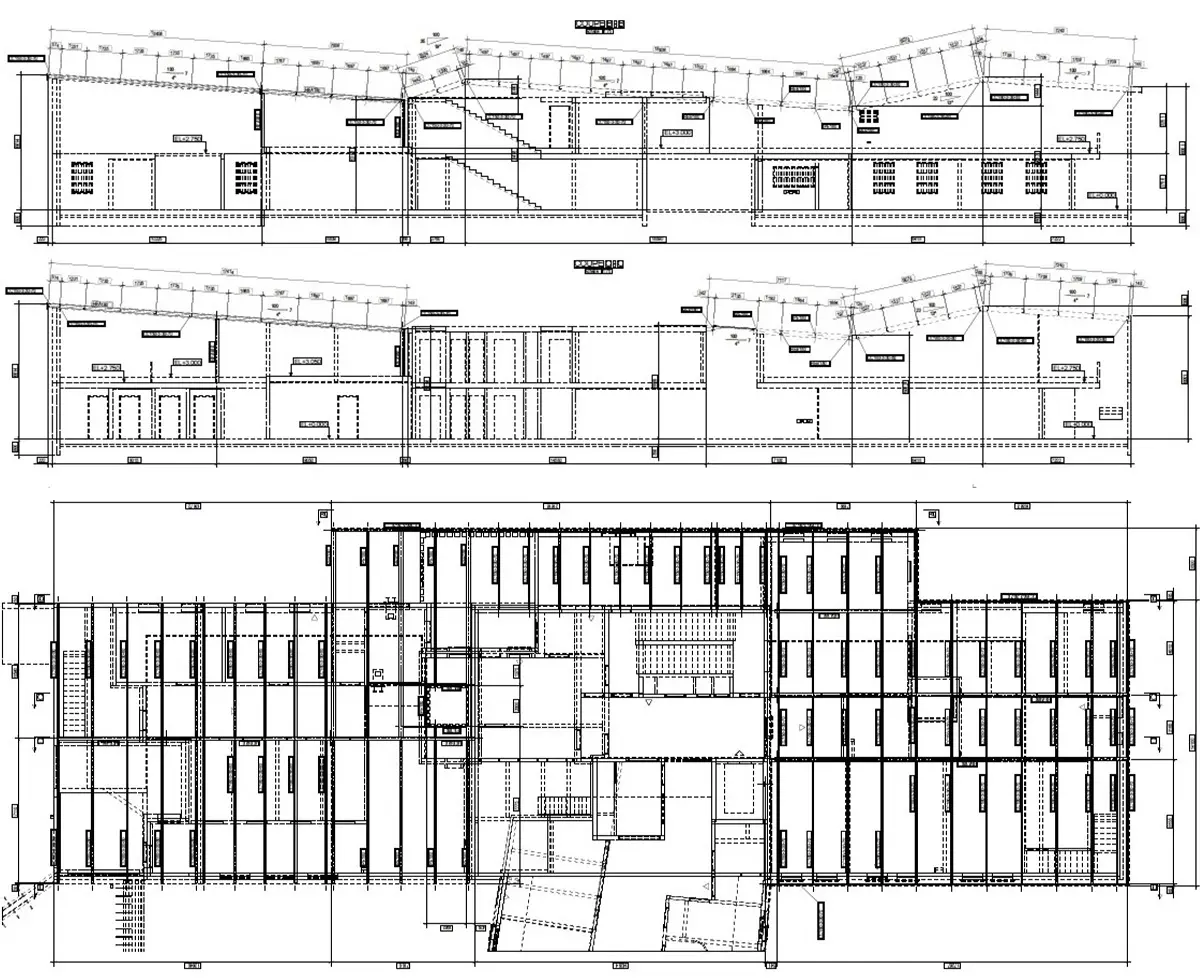
The Troyes–Lavau Penitentiary Centre project involved the structural design of the roofs across all buildings of the complex, including administrative, logistical, healthcare, sports and detention facilities. The assignment, valued at €5.4 million, integrated FEM analyses and Eurocode-based checks.
Timber roofs were designed for buildings dedicated to public reception and social services: AFA (family reception), PHE (judicial extraction centre), PIP + Gymnasium 1 (training and sports), and PI2 (education), using lightweight glulam and solid timber systems. Steel roofs were adopted for operational, technical and detention facilities such as MESS (canteen), PREJ (judicial transfers), PAR (visiting rooms, UVF), QAE, QID, SAT (healthcare), USN (medical unit), PEP (main entrance), PEL, SGC (logistics, workshops, catering, laundry) and detention blocks MA1–MA4. Building PI1 featured a hybrid steel–timber roof for optimized rigidity and reduced weight.
Incide Engineering carried out preliminary sizing, structural modelling, ELU–ELS verifications and BIM integration, ensuring safety, durability and technical consistency across all functional areas of the facility.
Timber roofs were designed for buildings dedicated to public reception and social services: AFA (family reception), PHE (judicial extraction centre), PIP + Gymnasium 1 (training and sports), and PI2 (education), using lightweight glulam and solid timber systems. Steel roofs were adopted for operational, technical and detention facilities such as MESS (canteen), PREJ (judicial transfers), PAR (visiting rooms, UVF), QAE, QID, SAT (healthcare), USN (medical unit), PEP (main entrance), PEL, SGC (logistics, workshops, catering, laundry) and detention blocks MA1–MA4. Building PI1 featured a hybrid steel–timber roof for optimized rigidity and reduced weight.
Incide Engineering carried out preliminary sizing, structural modelling, ELU–ELS verifications and BIM integration, ensuring safety, durability and technical consistency across all functional areas of the facility.











